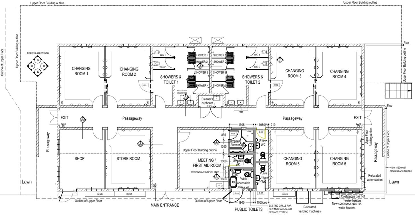
Hockey Manawatu Pavilion Renovations
9th March - 25th May 2026
- Please be mindful and stay clear of machinery, tools, contractors and vehicles during this period -
Construction Schedule
Monday - Friday 7:00AM - 7:00PM
Saturday 7:00AM - 11:30AM
IMPORTANT INFORMATION
Temporary changing rooms & toilets will be onsite
Upstairs pavilion, café & bar remain open
No impact on turf lighting or watering
Go Hockey stays fully accessible
We appreciate your patience. These short-term disruptions will deliver long-term gains for our whole community.
UPGRADES
Larger, flexible changing rooms
Modern showers & toilets
Improved accessibility
Umpire facilities
Fire safety upgrades
MOST UPDATED
Hockey Manawatu Incorporated
6A Manawaroa Street, Palmerston North
Phone: (06) 356 4562